© 1982 VATCO PROPERTIES INC.
|
See Map
The information contained herein has been obtained from sources which are deemed reliable, however Vatco Properties, Inc. makes no warranty or representation as to the
accuracy of any of this information. The buyer is encouraged to perform any due diligence deemed appropriate.The presentation of this property is submitted to subject
to errors, omissions, change of price, prior sale or lease or withdrawal without notice.



Mason Creek Industrial Business Park is nestled in the heart of the business district of ever-growing City
of Katy, Texas. The Industrial park offers easy access to Interstate 10 (I-10) through Mason Creek. Phase
I development of the Industrial Park consists of two (2) ±21,600 square feet tilt-up wall buildings, with
nine (9) ±2,400 square feet condo units in each building.
The following characteristics are typical for each unit:
- Each condo unit consists of approximately 1,725 sq ft warehouse/storage, with sealed concrete floor
and approximately 675 sq ft carpeted office space
- Minimum 18 feet high ceiling in the warehouse area
- Back entry door and 12’x 12’ overhead door in the warehouse
- Private entrance, with glass storefront
- High efficiency 3-ton air conditioner servicing the office space
- 120/208 volt, 3-phase with 200 Amp. electric panel servicing each unit
- Private restroom
- Quality hardware and finishes
- Roof is SBS modified bitumen roofing system, 2 ply over 2.25” rigid insulation; 15 years warranty
manufactured by Certainteed.
- Lush landscaping
- Ample parking
- Security lighting in the parking lot
- Strong Business Owner Association
- Enclosed outdoor common dumpster area
INDUSTRIAL CONDO UNITS FOR SALE Condo Office/Warehouse Business Park Mason Creek Industrial Condominiums 21732 and 21734 Provincial Blvd. Katy, Texas 77450
|
FOR SALE - Individual Office/Warehouse Condo Units
|
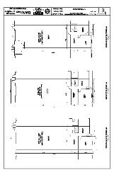
OVERALL SUITE LAYOUT
FLOOR PLANS
The information contained herein has been obtained from sources which are deemed reliable, however Vatco Properties, Inc. makes no warranty or representation as to
the accuracy of any of this information. The buyer is encouraged to perform any due diligence deemed appropriate.The presentation of this property is submitted to
subject to errors, omissions, change of price, prior sale or lease or withdrawal without notice.